U gebruikt een verouderde internetbrowser.
We raden u aan om de meest recente internetbrowser te installeren voor de beste weergave van deze website.
Een internetbrowser die up to date is, staat ook garant voor veilig surfen.

Lindeveldstraat 32 , 3300 Tienen
Vraagprijs: € 325.000

Omschrijving

Prachtig perceel voor OPEN BEBOUWING te Kumtich

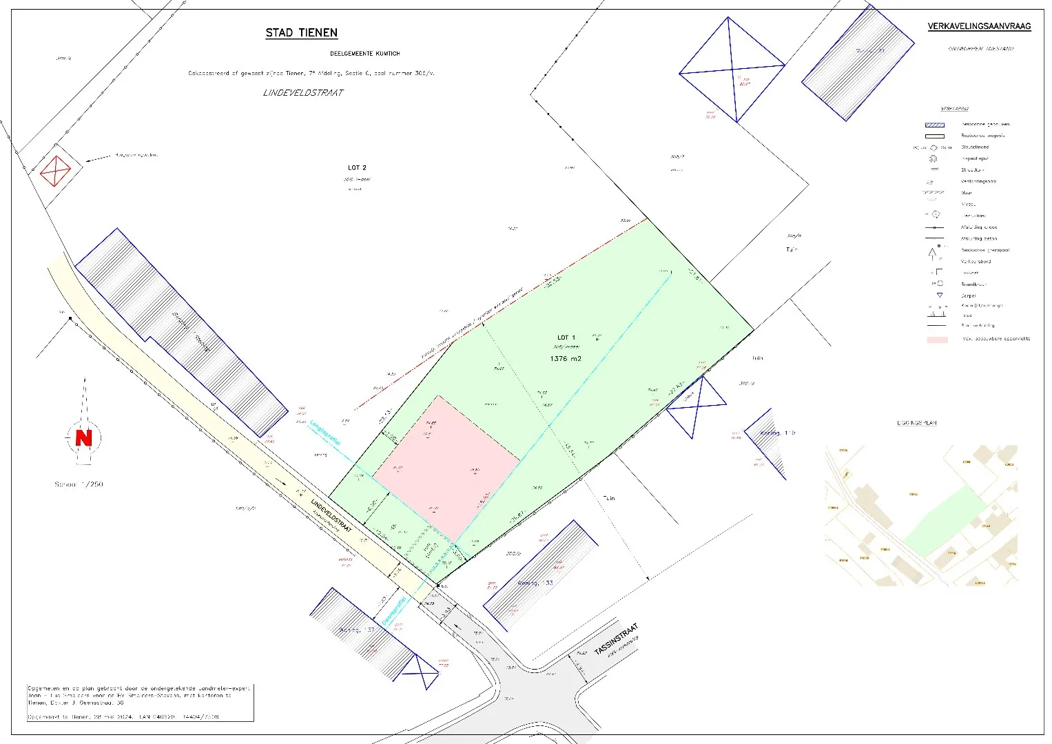
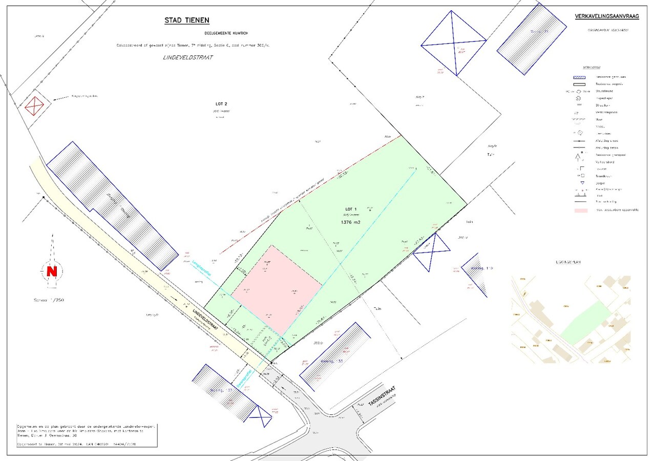
Dit prachtig perceel van 13are 76ca is gelegen in een oase van rust in de groene omgeving van Kumtich (Tienen). Het perceel ligt in een zeer rustig wegje zodat u kunt genieten van alle rust en natuur. De locatie is top: tussen Leuven en Tienen, vlakbij alle uitvalswegen, winkels, bakkerij, enz.

De bouwgrond is geschikt voor een open bebouwing met een bouwbreedte van +/- 13 meter en een diepte van 15 meter (9 meter + bijgebouw van 60m²). Op de 1ste verdieping is de diepte 9 meter. Zadeldak is tss 30° en 45° zodat u nog een 2de verdieping heeft. Bijgebouw van 40m² is eveneens mogelijk. Kelderverdieping is ook toegestaan.

De voorschriften en bijkomende informatie zijn te bekomen op het kantoor of per mail info@ledonimmo.be.
Graag een bezoek ter plaatse? Bel David van LED-ON-IMMO op het nummer 0476/98.91.76 of mail naar info@ledonimmo.be. Tot gauw ;)


Kenmerken

Algemeen

Adres:Lindeveldstraat 32
Tienen
Referentie:Lindeveldstraat 32+ , 3300 Tienen
Vraagprijs:€ 325.000
Type:Grond
Beschikbaar vanaf:Bij akte
Ligging:Landelijk, Open ligging, Buiten bebouwde kom, Bosrijke omgeving
Perceeloppervlakte:1.376 m²
Perceelbreedte:19,54 m
Perceeldiepte:60 m
Type constructie:Traditioneel
Gevelbreedte:13,54 m

Indeling

Tuin:Ja
Tuin oriëntatie:Oost

Comfort

Snelweg:Ja - op 3000 m tot 4000 m
Treinstation:Ja - op 3000 m tot 4000 m
Treinhalte:Ja - op 3000 m tot 4000 m
Busknooppunt:Ja - op 500 m tot 1000 m
Bushalte:Ja - op 500 m tot 1000 m
Winkel:Ja - op 500 m tot 1000 m
School:Ja - op 500 m tot 1000 m
Kinderopvang:Ja - op 500 m tot 1000 m
Bank:Ja - op 1000 m tot 1500 m
Ontspanning:Ja - op 500 m tot 1000 m
Restaurant:Ja - op 500 m tot 1000 m

Kadastrale gegevens

Kadastrale benaming:Tienen 7de afdeling
Kadastrale Nummers:sectie C nr 306/00V/DEEL lot 1
Kadastrale Oppervlakte:1.376 m²

Informatieplicht

Stedenbouwkundige vergunning:Ja
Voorkooprecht:Neen
Verkavelingsvergunning van toepassing:Ja
Stedenbouwkundige bestemming:Woongebied
Dagvaarding en herstelvordering:Geen rechterlijke herstelmaatregel of bestuurlijke maatregel opgelegd
Overstromingsgevoelig:Niet meegedeeld
Overstromingsgebied:Niet meegedeeld
Overstromingskans perceel (P-score):  D
Overstromingskans gebouw (G-score):B
Erfgoed:Geen beschermd erfgoed

Ligging

Neem vrijblijvend contact op

Wenst u meer informatie of het pand te bezoeken? Vul onderstaand formulier in of bel ons op 0476 98 91 76.


U moet akkoord gaan met het privacybeleid van deze website
* Verplicht in te vullen
Niet gevonden wat u zocht? Schrijf u dan vrijblijvend in en blijf op de hoogte van ons recentste aanbod.
Schrijf u in
Terug naar boven
Sluit menu Led-On-Immo